2022.12.12
三一筑工
近日,随着娄底三一街区二期项目18#栋机房层混凝土浇筑完成,三一筑工SPCS3.0技术体系与SPCH空间灵动家设计体系相结合的主体建筑正式封顶。通过SPCS3.0“空腔搭接加后浇、等效异构好快省”的技术,真正的实现了项目建筑结构安全性好、品质好、环境友好,省工期、省人工、省建安成本。

一、项目概况
1、娄底三一街区二期项目,位于娄底市娄星区娄涟公路,西依太和路,东临勤丰路;项目由三一竹胜园房地产开发有限公司开发,浙江城建作为总承包企业进行施工,三一筑工提供预制构件及安装施工。同时,由三一筑工提供从项目策划到实施的全方面全过程技术赋能指导,确保SPCS技术的顺利实施。
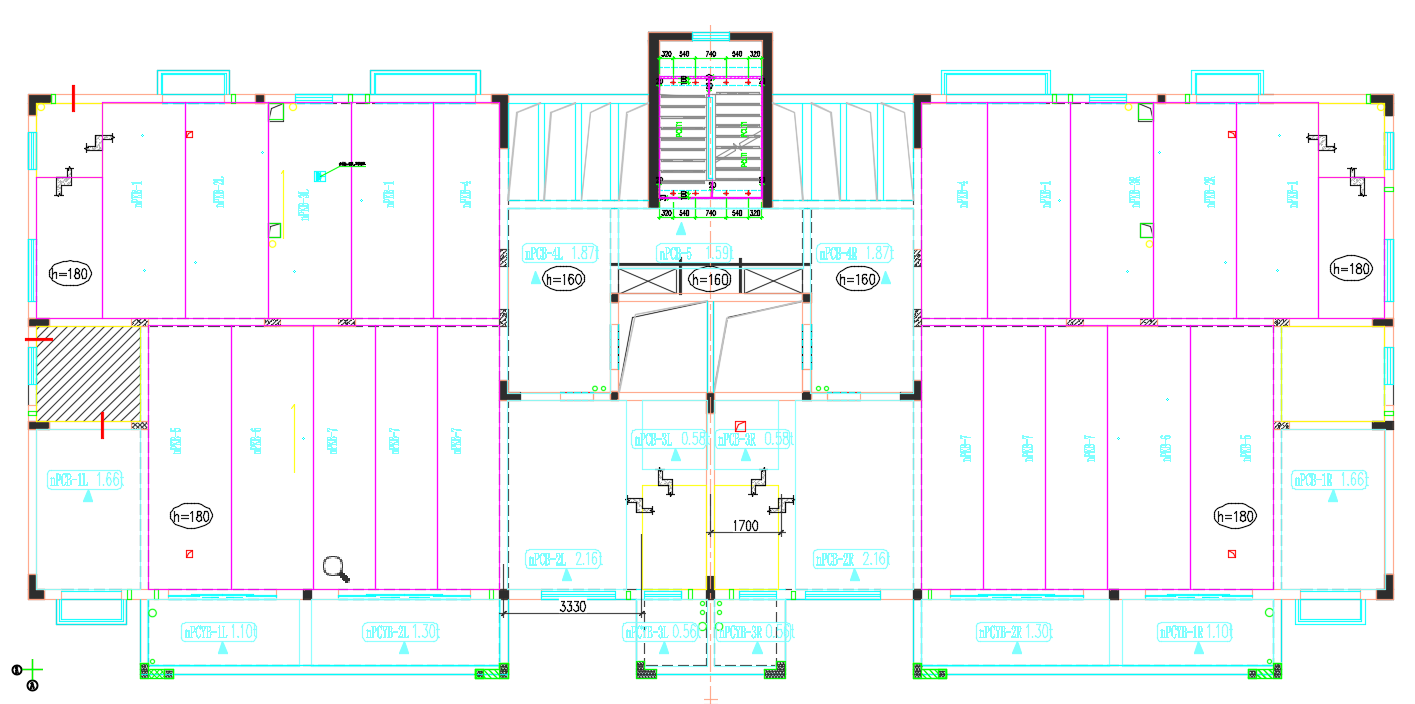
2、本项目总建筑面积98489㎡,其中18#栋采用三一筑工SPCS3.0结构体系+SPCH空间灵动家;18#栋建筑高度为58.45米,层高为3.1米,总共17层。空腔墙应用范围4-17层,预制楼板应用范围3-17层,装配率达到66.7%。

SPCH可变空间住宅的结构设计需创造极简的结构空间,从而为建筑空间的灵活可变提供基础条件,结构布置时剪力墙及梁均沿结构周边布置。户内保留一道不影响建筑空间调整的梁。部分建筑外墙的窗间墙采用填充墙,进一步为灵活可变的空间提供潜在可能。未来的用户也可能创造出更多的变化。

本项目楼板跨度达9.6m,常规楼板形式已无法实现,需要采用大跨度楼板。大跨度楼板较普通钢筋混凝土楼板有其自身的特点,如对荷载相对敏感、自重在其承载能力中的占比大、正常使用极限状态可能超越承载力极限状态成为控制因素等。综合考虑建筑工业化、工期、板型优缺点等因素,最终采用预应力混凝土钢管桁架叠合板(PK-Ⅲ板) 作为水平构件。

二、SPCS技术体系在项目中的应用情况
1、更好:结构安全性好、建筑品质好,环境友好
18#栋SPCS结构体系剪力墙采用“空腔预制构件+搭接钢筋+后浇叠合混凝土”,“空腔+搭接+后浇”是一种“工业化现浇”的过程,它既保留了传统现浇的做法,整体安全,防水性能好,品质高,又用工业化生产的方式,提升了生产效率,大大减少了对环境的污染。

2、更省:省人工、省工期、省建安成本
18#栋采用SPCS体系,实现大墙、大板,从而大大的减少了构件吊装、支撑搭设、模板安装、钢筋绑扎、混凝土浇筑等工作内容,减少了现场工人需求。有效的缩短了标准层的施工工期,从而有效的节约了建筑成本。
三、SPCS结构体系的优点:
1、SPCS结构体系通过融合预制空腔柱、墙、叠合板、PK-Ⅲ板,相比较传统实心预制柱、墙与叠合楼板的组合方式,主要受力构件自重更轻,便于运输与吊装,对塔吊和其他起重设备要求较低。
2、连接方式更加有效:常见的装配整体式混凝土结构竖向构件,采用灌浆套筒连接方式,此种方式难以保证注浆质量且无法后期检测,而SPCS装配整体式混凝土叠合结构构件连接均采用钢筋套筒机械连接或间接搭接,不设置预埋套筒,可有效解决灌浆套筒连接的质量隐患问题,从而保证施工质量。
四、SPCH空间灵动家
空间灵动家是“大空间”、“灵”、“动”的工业化建筑产品。
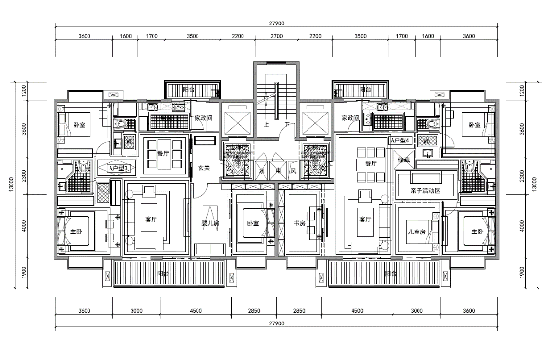
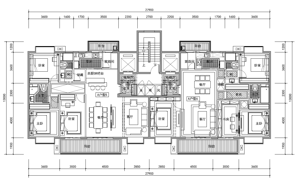
“大空间”:主体结构的极简,轮廓尽可能简洁方正,完全取消户内的承重墙体和结构柱,所有竖向承重结构沿外围布置,主要朝向最大限度开敞通透,户内大空间无柱,为满足住户定制的可变空间需求提供基础条件。


“灵”:智能家居与建筑智能化,利用工业化的智能制造技术及平台优势,分级推进模块化、智能化集成墙体系统的研发,提高内装部品及内隔墙体的工业化、智能化程度。通过集成建筑工业化的最新科技成果与产品,最大程度的用工业化的生产方式实现更高的房屋质量。智能家居已开始改变人们的生活模式,把建筑的部品部件、内装家具与人工智能结合,建筑将比我们更了解自己,能通过记忆学习人们的行为,智慧的满足人们居住、办公、娱乐、社交等的所有需求。
“动”:通过可以“活动”的隔墙系统、菜单化的灵动户型设计及完备的技术体系、工厂定制的部品部件,给住户带来功能布局、材料品质、生活模式、消费方式的全面选择权。内装采用可拼装模块化智慧隔墙系统,结合可变家具的应用,实现房间数量、大小、功能的变化,自由划分空间,进行家庭场景的自由切换。
娄底三一街区18#栋 采用少规格,多组合的标准化构件,根据家庭生命周期变化的特点,提供不同的可变空间组合方案满足不同住户的居住需求(图a-图c):
可实现满足年轻夫妻社交需求的二人世界;为创业者和后疫情时代居家办公提供“创业家”;为三口之家、二孩之家、三代同堂等不同家庭生命周期住户提供的多种户型选择。



多种方案
娄底三一街区18#的顺利封顶,是一个具有里程碑意义的重要节点,这标志着SPCS 3.0与SPCH相结合的技术体系获得重大突破。三一筑工用智能建造的方式,推动了中国建筑业的低碳发展和转型升级,推动了中国建筑业迈向智能建造发展新时代,推动了中国建筑业向“更好更快更省”的方向上大步迈进。
0条评论